Бизнес-парк
для роста

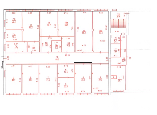
Офис 402

Готов к въезду

м²

Площадь

р

Стоимость в месяц

р

Ставка в год за м²

object-page

Основные параметры

Корпус 7
Этаж 4 (мансарда)
Этажность 4
Площадь 38.8 кв.м
Платеж в месяц 97 000 руб. с НДС
Коммунальные услуги Включены в стоимость
Эксплутационные расходы Включены в стоимость

Планировка и план этажа

glass

Инфраструктура в этом корпусе

market Красота и здоровье: 2
market Услуги: 15
market Магазин: 2

Дополнительные услуги УК

Возможность въезда-выезда на внутреннюю территорию

Услуги клининга

Услуги технической эксплуатации помещений арендатора

Строительно-монтажные работы и мелкий ремонт

Размещение рекламных носителей арендатора внутри бизнес-парка

Почтовые услуги

Юридическая информация

ОАО «Ямское поле» г. Москва, 3-я ул. Ямского поля дом 2, корпус 13 ИНН/КПП 7714802161/771401001 ОГРН 1107746158596 ОКПО 64424513, ОКВЭД 68.20 Тел./факс: (495) 789-43-43

Заявка на просмотр помещения

Оставьте ваши контакты и наш менеджер свяжется с вами в ближайшее время

.uicore-animate-scroll { animation-fill-mode: both; animation-timing-function: linear; animation-timeline: view(block); }